![]() |
有限会社 堀元コーポレーション |
℡:0467-71-6211 |
||||
| TOP | 会社案内・アクセス | プライバシーポリシー | お問合せ | |||
| ◇ 物 件 紹 介 ◇ |
|---|
| 新築戸建 | 中古戸建 | 土 地 | 収益物件 |
| ★新着★ |
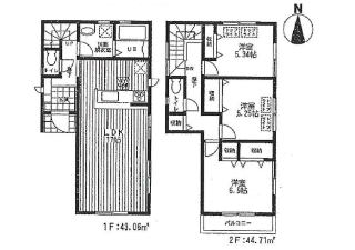
【新築戸建】 高座郡寒川町倉見/全2棟 1号棟:2,930 万円(税込) 2号棟:2,580 万円(税込) ◆南東角地!(1号棟) ◆駅まで徒歩可!(2駅利用可) ◆周辺にコンビニ、スーパー、飲食店などあり! ◆平坦地! ◆閑静な住宅街! ![]() 2017年5月撮影 ![]() <1号棟間取図> <2号棟間取図> ![]() <物件概要> ・所在地:高座郡寒川町倉見 ・交通:JR相模線「倉見」駅徒歩9分、「門沢橋」駅徒歩10分 ・敷地面積/1号棟:106.17㎡、2号棟:84.42㎡ ・建物面積/1号棟:95.63㎡、2号棟:87.77㎡ ・建物構造/木造2階建 ・総戸数/2棟 ・土地権利/所有権 ・地目/宅地 ・都市計画/市街化区域 ・用途地域/第1種住居地域 ・公法制限/準防火地域 ・建ぺい率/60% ・容積率/200% ・現況/更地 ・完成時期/2017年10月上旬予定 ・設備/東京電力、個別LPG、公営水道、本下水 ・接道/南側幅員約4m、東側約6.3mの公道に接道 ・備考/セットバック採納予定 ・建確No./第KBI-SGM17-10-1836、第KBI-SGM17-10-1837 ・取引態様/一般媒介 【学区】旭小学校/旭が丘中学校 ◎セブンイレブン 徒歩7分 ◎Fujiスーパー 徒歩11分 ◎寒川北I.C. 車5分 ◎海老名I.C. 車7分 資料請求や詳細につきましては、お気軽にご連絡ください! TEL:0467-71-6211 <取引態様:一般媒介> ※現況と上記内容が異なる場合には、現況を優先させていただきます。 ※万一売却済みの場合にはご了承ください。 |

| 学区情報 | 学区限定でお探しの方はこちら | |
| HOME | 建築 | 会社案内・アクセス | 学区 | ローン計算 | 個人情報保護方針 | お問合せ |
| Copyright(C) Horigen Corp. All Rights Reserved. |